3D-Badplanung in Oberösterreich
Realistische Planung
für Ihre Badsanierung
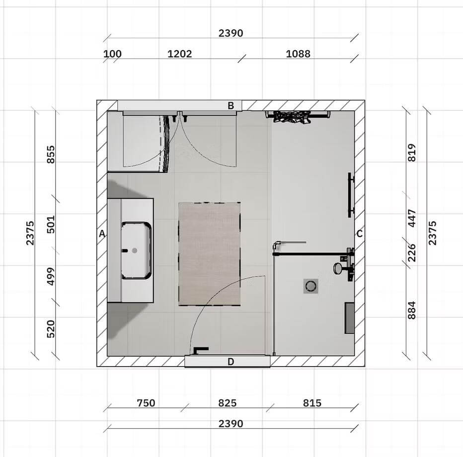
Mit unserer 3D-Badplanung erleben Sie Ihr neues Badezimmer, bevor es gebaut wird. Jeder Raum wird millimetergenau vermessen, und Ihre Wünsche und Vorstellungen fließen direkt in die Planung ein. So entsteht ein realitätsnahes Modell, das Ihnen hilft, Raumaufteilung, Materialien, Farben und Beleuchtung optimal zu beurteilen.





